CASA ALAZÁN
|
Ubicación Jalisco, México.
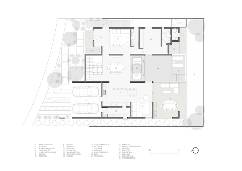
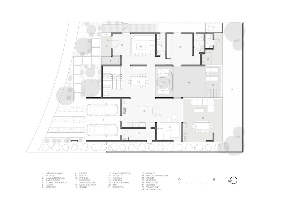
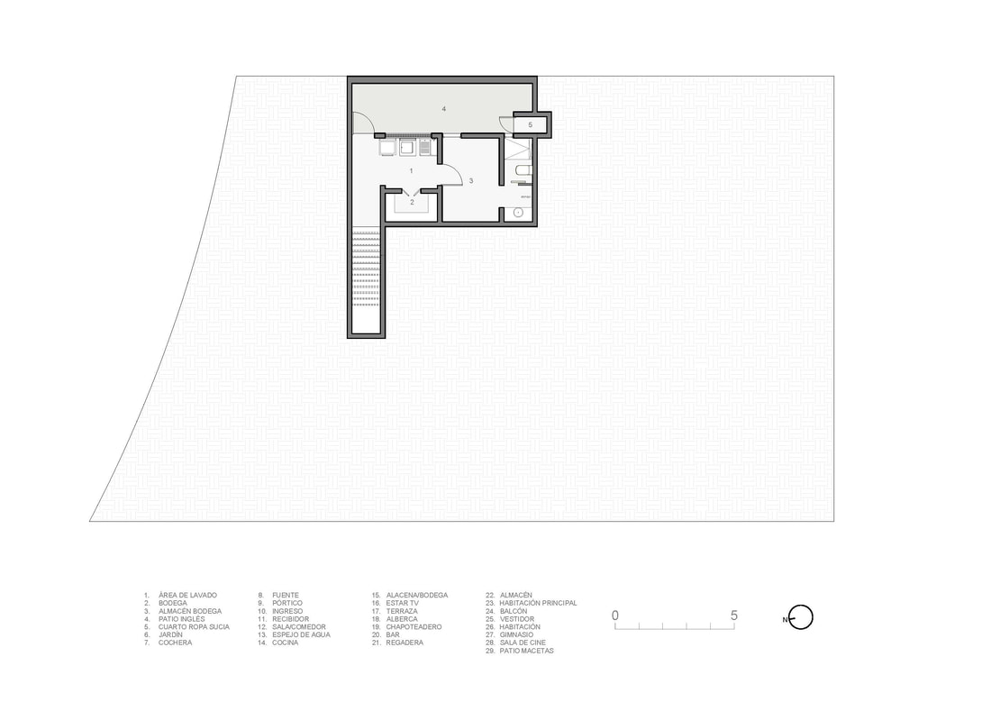
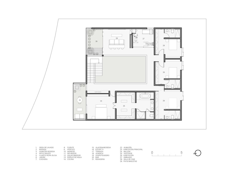
Área de Terreno 518 m² Área de Construcción 505 m² Proyecto 2023 Construcción 2025 |
Location Jalisco, México.
Plot area 5,575.71 ft² Built area 5,435.77 ft² Project 2023 Construction 2025 |
|
ES:
La vivienda presenta un diseño contemporáneo y minimalista que combina materiales naturales con elementos arquitectónicos contemporáneos. El diseño de los muros celosía destaca por su composición geométrica a base de patrones triangulares, lo que permite el paso de la luz y la ventilación natural, creando un juego de sombras dinámico en el interior y exterior de la casa. Este recurso no solo tiene un carácter estético, sino también funcional, al contribuir al confort térmico y lumínico del espacio. En la planta baja, se utilizan muros de piedra natural en tonos oscuros, lo que otorga una base sólida y robusta al diseño, contrastando con la ligereza visual de la celosía en la planta alta. Este contraste entre materiales pesados y ligeros equilibra la composición general de la fachada. El revestimiento blanco de los muros superiores acentúa la modernidad de la vivienda y enfatiza la pureza del diseño volumétrico. La madera empleada en la puerta principal agrega calidez y textura al conjunto, equilibrando la sobriedad del blanco y la piedra. Este enfoque en la elección de materiales refuerza la conexión entre el diseño arquitectónico y el entorno natural. |
EN:
The house features a contemporary and minimalist design that combines natural materials with contemporary architectural elements. The lattice walls stand out for their geometric composition based on triangular patterns, allowing natural light and ventilation to flow through, creating dynamic shadow plays both inside and outside the house. This element serves not only an aesthetic purpose but also a functional one, contributing to the thermal and lighting comfort of the space. On the ground floor, natural stone walls in dark tones provide a solid and robust base, contrasting with the visual lightness of the latticework on the upper floor. This contrast between heavy and light materials creates a balanced composition for the overall façade. The white cladding of the upper walls emphasizes the modernity of the house and highlights the purity of its volumetric design. The use of wood in the main door adds warmth and texture to the composition, balancing the sobriety of the white and stone. This thoughtful selection of materials reinforces the connection between the architectural design and its natural surroundings. |
Fotografias José Juan Rodríguez












